


























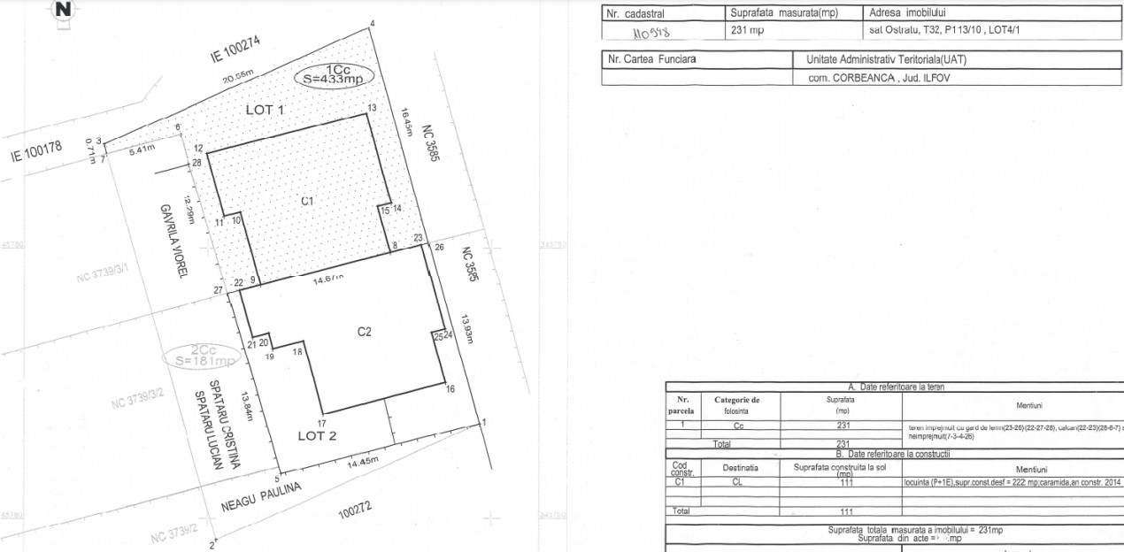
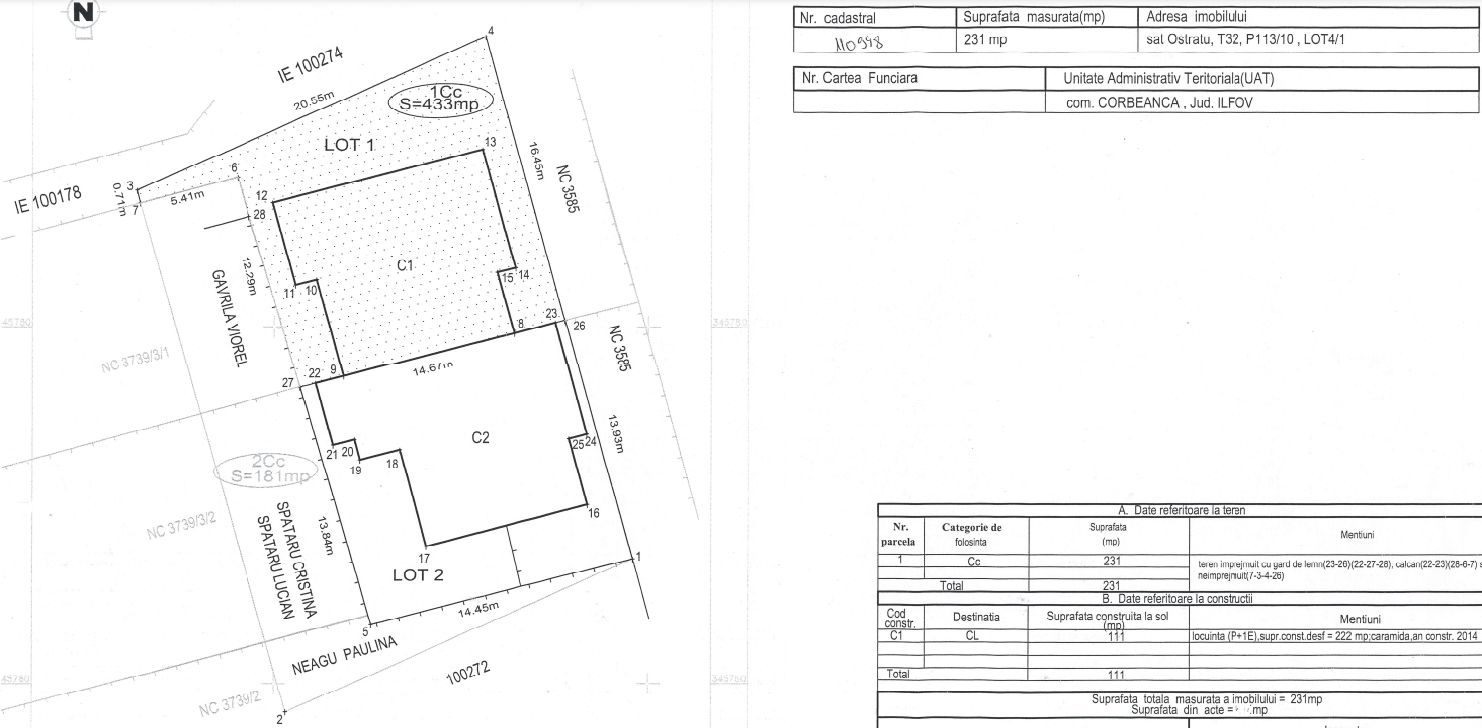
Duplex situat într-un cartier linistit, in apropiere de lac, pe strada Hipodromului nr.35, Ostratu.
Curtea individuala: are spatiu pentru parcare, o gradina cu flori, o terasa acoperita si o magazie pentru depozitare, fiind înconjurată de un gard, ce oferă intimitate și siguranță.
Parter: Hol cu dressing, Bucătărie total mobilata si utilata inclusiv cu masina de spalat vase, Centrala Termica proprie, Livingul spațios cu vedere mixta, grupul sanitar cu masina de spalat rufe si Scară interioară către Etaj.
Etaj: din Hol avem acces către un dormitor luminos cu balcon, cu vederea spre parcul interior, o camera-birou si o Baie mare cu cada si fereastra.
Mansarda: Spațiu generos perfect pentru depozitare.
Duplexul este construită pe o structură solidă din beton armat, cu zidărie din cărămidă și acoperiș din tablă Lindab.
Pentru mai multe informații sau pentru a programa o vizionare, vă rugăm să ne contactați!